Zum Inhalt wechseln
  • EN
  • Markenarchitektur
    • Projekte
    • Team
    • Karriere
    • Kontakt
  • Bauprojekte
    • Projekte
    • Team
    • Karriere
    • Kontakt
  • EN

Severich & Partner Architekt Architektur Messebau Bauprojekte Hochbau Roetgen Aachen Köln Eifel Nordeifel Innenausbau Wohnung Wohnen Simmerath MFH Mehrfamilienhaus Haus
Severich & Partner Architekt Architektur Messebau Bauprojekte Hochbau Roetgen Aachen Köln Eifel Nordeifel Innenausbau Wohnung Wohnen Simmerath MFH Mehrfamilienhaus Haus
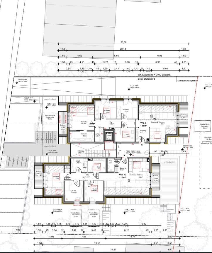
SIMMERATH

MEHRFAMILIEN HAUS

ORT
GRÖSSE

Simmerath

940 m²

Nachhaltig wohnen mit Weitblick – Eigentumswohnungen in Simmerath

In attraktiver Lage mit Blick in die Eifel entsteht ein modernes Wohngebäude mit zehn Eigentumswohnungen. Die Konstruktion in Holz-Beton-Hybridbauweise kombiniert gezielt die Vorteile beider Materialien: Nachhaltiges Bauen und angenehmes Raumklima, sowie Brandschutz, Wärme- und Schallschutz.

Eine Tiefgarage mit zehn Stellplätzen bietet komfortables Parken direkt am Haus. Die Energieversorgung erfolgt über Geothermie und Wärmepumpe, ergänzt durch eine geplante Photovoltaikanlage – ausgelegt auf den KfW-Effizienzhausstandard 40 Plus.

Das Gebäude ist zirkulär geplant und folgt dem Cradle-to-Cradle-Prinzip. Verwendet werden ressourcenschonende, recyclingfähige Baustoffe – für eine zukunftsfähige und langlebige Bauweise.

Ein Wohnprojekt, das ökologische Verantwortung, technische Qualität und Wohnkomfort vereint – in einer der schönsten Lagen der Nordeifel.

Design & Ausführung Severich & Partner Bauprojekte | Zeichnungen Severich & Partner Bauprojekte

zurück
zurück
Rhenus, Transport Logistic
Impressum

© SEVERICH & PARTNER

Datenschutz
Facebook Instagram Linkedin

© SEVERICH & PARTNER

Impressum
Datenschutz
Facebook Instagram Linkedin
Zustimmung verwalten
Um dir ein optimales Erlebnis zu bieten, verwenden wir Technologien wie Cookies, um Geräteinformationen zu speichern und/oder darauf zuzugreifen. Wenn du diesen Technologien zustimmst, können wir Daten wie das Surfverhalten oder eindeutige IDs auf dieser Website verarbeiten. Wenn du deine Zustimmung nicht erteilst oder zurückziehst, können bestimmte Merkmale und Funktionen beeinträchtigt werden.
Funktional Immer aktiv
Die technische Speicherung oder der Zugang ist unbedingt erforderlich für den rechtmäßigen Zweck, die Nutzung eines bestimmten Dienstes zu ermöglichen, der vom Teilnehmer oder Nutzer ausdrücklich gewünscht wird, oder für den alleinigen Zweck, die Übertragung einer Nachricht über ein elektronisches Kommunikationsnetz durchzuführen.
Vorlieben
Die technische Speicherung oder der Zugriff ist für den rechtmäßigen Zweck der Speicherung von Präferenzen erforderlich, die nicht vom Abonnenten oder Benutzer angefordert wurden.
Statistiken
Die technische Speicherung oder der Zugriff, der ausschließlich zu statistischen Zwecken erfolgt. Die technische Speicherung oder der Zugriff, der ausschließlich zu anonymen statistischen Zwecken verwendet wird. Ohne eine Vorladung, die freiwillige Zustimmung deines Internetdienstanbieters oder zusätzliche Aufzeichnungen von Dritten können die zu diesem Zweck gespeicherten oder abgerufenen Informationen allein in der Regel nicht dazu verwendet werden, dich zu identifizieren.
Marketing
Die technische Speicherung oder der Zugriff ist erforderlich, um Nutzerprofile zu erstellen, um Werbung zu versenden oder um den Nutzer auf einer Website oder über mehrere Websites hinweg zu ähnlichen Marketingzwecken zu verfolgen.
Optionen verwalten Dienste verwalten Verwalten von {vendor_count}-Lieferanten Lese mehr über diese Zwecke
Einstellungen ansehen
{title} {title} {title}